PIPELIFE PRODUKTKATALOG

Hem VA Polar brunnar och betäckningar Polar nedstigningsbrunnar PRO 1000, PP Polar PRO 1000 Stigarring, PP Polar PRO 1000x500 STIGARRING , PP

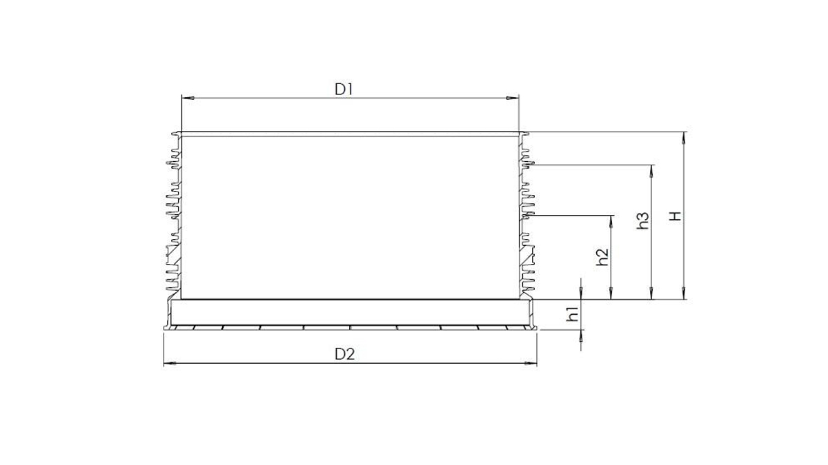
Polar PRO 1000x500 STIGARRING , PP

RSK-nr 2357679
Pipelife art.nr 70006797

Stigarringar med eller utan stege till förhöjning av Pipelifes PRO1000-brunnar.
Finns i både SN2 och SN4.
Stigarringarna utan stege är kapbara.
Kompletteras med tätningsringar.
AMA kod: PDB.12 Nedstigningsbrunn av plast

  • ..