PIPELIFE PRODUKTKATALOG

Hem VVS Nordic Inomhusavlopp Nordic Dubbelgrenrör 45° och 90°, PP Nordic Dubbelgrenrör 110x110x90° PP

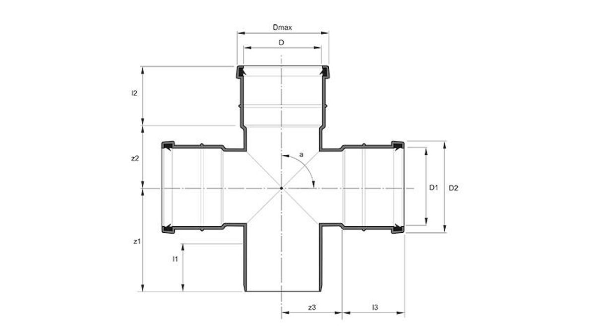
Nordic Dubbelgrenrör 110x110x90° PP

RSK-nr 2832104
Pipelife art.nr 70004406

Nordic Dubbelgrenrör 110x110x90° PP enligt standard SS-EN 1451.
Tätningsringar enligt standard SS-EN 681-2.
AMA kod:PNU.5223 Ledning av PP-rör, inomhusavlopp.
PP Nordic uppfyller kraven enligt säker vatten.
Nordic möter ljudkraven enligt grundläggande krav, tidigare Ljudklass C.

  • ..